手機 :15318932736
郵箱:aqboyangjx@126.com 2254886259@qq.com
地址:山東省濰坊市安丘市錦湖北路155號

添加微信,立即溝通

掃一掃,抖音欣賞

安丘博陽機械噸袋拆包機主要用于500-2500KG袋狀物料的拆包卸料工作。根據用戶的需求和袋子的能否回收問題,拆包方式主要有兩種:一種是可以手動解袋的噸袋拆包機,這樣的拆包機不會破袋,袋子可以回收利用,另一種是自動破袋的噸袋破袋機,由于用割刀破袋,拆包速度加快,但是袋子不能回收利用。
噸袋拆包機其原理是通過叉車或電動葫蘆提升料袋至進料口,進行壓袋。人工將包裝袋下料口拆開或者自動破袋后,打開流量控制閥和附帶的滾動或拍打裝置,促使包裝內的物料通過自重落到下方料斗中。
噸袋拆包機不僅有效保護了生產環境、減輕了勞動者的工作強度、提高了生產效率,還可實現用戶無塵投料的需求。
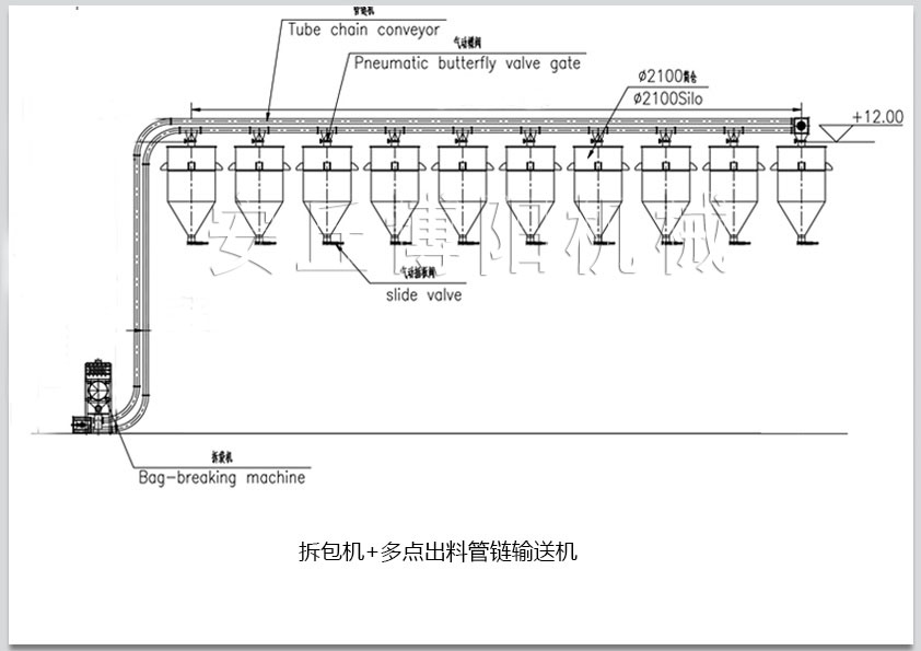
噸袋拆包機拆完后可通過管鏈輸送機(或氣力輸送系統、螺旋輸送機等)將物料輸送到所需地點。
噸袋拆包機應用范圍:
1、聚合物類--(聚丙烯、聚乙烯、聚苯乙烯、聚錄乙烯、聚碳酸酯、聚酯、尼龍、聚甲醛、ABS等)
2、化工原料類--(尿素、碳酸氫銨、硝酸銨、硝酸鈉、硝酸鋰、氯乙酸、氯化鉀、氫氧化鉀、工業鹽等)
3、染料、涂料、油漆、陶瓷類--(石膏粉、碳酸鈣、硫酸鋇、鐵太粉、重鈣、滑石粉、高嶺土等)
4、助劑、污水澄清劑、添加劑、洗滌劑--(碳酸鈣、巴碳、活性炭、洗衣粉、漂白粉等)
5、建材類--(水泥、石英砂、石灰、膠粉等)
6、其他行業類--其他適合自動拆包的袋裝散料(粉末、顆粒物、片狀、粒粉摻混料)
合作流程:
1.與客戶交流,了解客戶需求,根據客戶客觀條件設計合理方案。
2.客戶滿意方案后,根據實際情況規劃生產及設備布局方案。
3.簽訂合同,按照合同執行發貨。安丘博陽機械負責指導安裝或交鑰匙工程。
4.售后服務,設備在使用過程中,安丘博陽機械會根據客戶使用情況給客戶答疑,或前往使用現場幫助客戶解決問題。

安丘博陽機械不僅有用于噸袋物料的噸袋拆包機,也有用于10-50KG袋裝物料的自動拆包機。
